Vente en ligne de bâches sur mesure
Livraison partout en France et Click & Collect en Vendée
02 51 00 10 64
Bâche de façade pour mobil-home
Code de l'article :
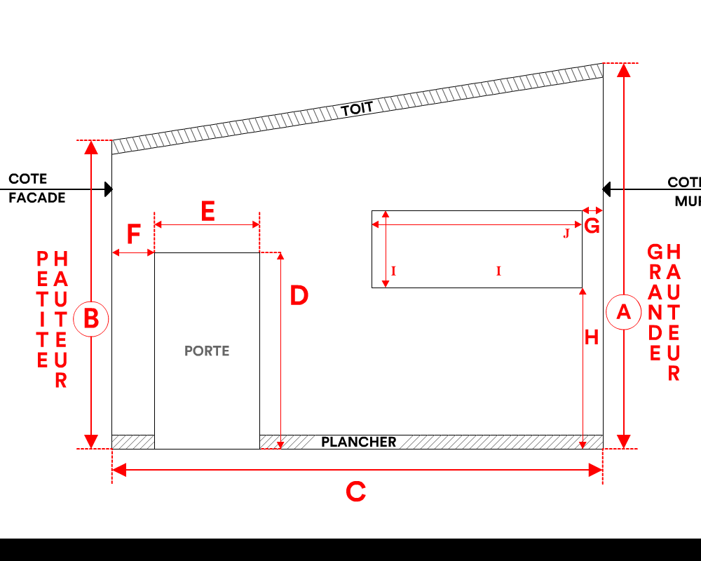
Dimension
- Grande hauteur (A) : 210 cm
- Petite hauteur (B) : 180 cm
- Longueur (C) : 300 cm
- Surface : 6.3m²
- Position de la rampe (C) : Aucune
- Ouverture de la bâche : Oui
- Décrochage de la gouttière : Aucune
Porte
- Position : Droite
- Hauteur (D) : 204 cm
- Largeur (E) : 83 cm
- Distance (F) : 30 cm
- Avec Fenêtre : : Oui
- Fenêtre avec volet : : Oui
Fenêtre
- Position : Gauche
- Hauteur (I) : 40 cm
- Largeur (J) : 80 cm
- Distance (G) : 30 cm
- Distance (H) : 30 cm
- Fenêtre avec volet : : Oui
Type de toile
- Nom : Membrane PVC 670gr/m²
- Couleur : Beige ral 1015
- Poids : 0.7kg/m²
Fixations
- Haut : Rail/Jonc
- Gauche : Rail/Jonc
- Droit : Rail/Jonc
- Bas : Tourniquets
Poids Total : 7.41kg
Disponibilité / livraison
Nous vous invitons à prendre contact avec nos services pour obtenir plus d'informations.




